En exclusivité - Réf: 280 – Bourganeuf – 130 800 €

Honoraires Agence Inclus/ Including agency fees

Beau pavillon des années 70 de 180m2 avec une grande terrasse. Possibilité d'habiter en plain-pied.

Dernière maison en cul de sac, avec grand jardin et garages.

 

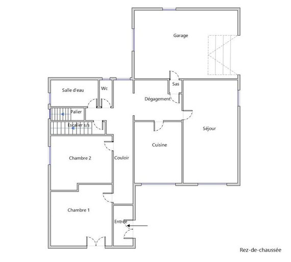
Rez de chaussée :

Entrée : 2.2 x 1.6 = 3.6m2, avec grand placard.

Couloir : 1.3 X 9.1 = 12.73.

Chambre 1 : 3.6 x 4.5 = 16.4m2, s'ouvre par porte fenêtre sur le balcon et la terrasse. Parquet chêne.

Chambre 2 : 4.5 x 3.3 = 15.2m2.

Couloir : 1 x 2.2 = 2.3m2.

WC : 1.7m2.

Salle d'eau : 3.5 x 1.8 = 6.7m2.

Dégagement : 2.5 x 3.4 = 8.9m2 avec accès au garage.

Cuisine : 3.4 x 4.5 = 15.6m2. Grande baie vitrée double vitrage huisseries aluminium donnant sur la terrasse. Cuisinière à bois.

Salle à manger / salon : 7.5 x 3.8 = 29.2m2. Grande baie vitrée double vitrage huisseries aluminium donnant sur la terrasse. Poêle à bois insert.

Garage (par sas de 1.3m2 avec évier) : 5 x 7.7 = 38.6m2, avec porte électrique récente.

 

1er étage (sols : parquet chêne) :

Palier : 3m2

Chambre 3 : 4.9 x 3.6 = 17.9m2, avec grand velux et pièce en enfiade type dressing avec fenêtre : 4.3 x 2.7 = 12.1m2.

WC : 1.4m2.

Salle d'eau : 2.9 x 1.5 = 4.5m2. Avec velux.

Chambre 4 : 5.5 x 2.8 = 16m2 avec grand velux, fenêtre et placard. En enfilade, espace grenier : 2.2 x 5.7 = 13.22m2.

 

Sous sol :

Couloir : 5.5m2.

Cave à vin : 6.1 x 1.7 = 10.7m2.

Chaufferie : 2 x 3.5 = 7.3m2.

Cellier : 1.19m2.

Buanderie : 3.3 x 3.8 = 13.1m2.

Espace garage : 4.4 x 6 = 27.2m2.

Cellier : 5.9 x 1.5 = 9.3m2.

 

Extérieur :

Garage : 30m2.

Appentis : 9m2.

Jardin : 1900m2.

 

Caractéristiques techniques :

Survitrage huisseries bois + baies vitrées double vitrage aluminium et 1er étage en double vitrage bois et aluminium.

Chauffage central fuel, insert bois et cuisinière bois.

Electricité à revoir. Compteur Linky.

Assainissement autonome conforme, travaux récents.

Accessoires : Grand portail coulissant en aluminium. Auvent. Volets roulants électriques.

Travaux à prévoir : réparer 2 fuites de goutière, remplacement de certaines tuiles, électricité.

 

Beautiful 1970's house of 180m2 with large terrace. Possibility of living on one level.

Last house in cul de sac, with garden and garages.


Ground floor :
Entrance : 2.2 x 1.6 = 3.6m2, with large cupboard and french doors into corridor.
Corridor : 1.3 x 9.1 = 12.73.
Bedroom 1 : 3.6 x 4.5 = 16.4m2, opens via French windows onto the balcony and terrace. Oak parquet flooring.
Bedroom 2 : 4.5 x 3.3 = 15.2m2.
Corridor : 1 x 2.2 = 2.3m2.
WC : 1.7m2.
Shower room : 3.5 x 1.8 = 6.7m2.
Open space : 2.5 x 3.4 = 8.9m2 with access to the garage.
Kitchen : 3.4 x 4.5 = 15.6m2. Large double glazed aluminium bay window overlooking the terrace. Wood burning cooker.
Dining room / living room : 7.5 x 3.8 = 29.2m2. Large double glazed bay window
overlooking the terrace. Wood-burning stove.
Garage (accessible via small corridor of 1.3m2 with sink) : 5 x 7.7 = 38.6m2, with recent electric door.
 
1st floor (floors: oak parquet) :
Landing : 3m2
Bedroom 3 : 4.9 x 3.6 = 17.9m2, with large velux window and dressing room with window: 4.3 x 2.7 = 12.1m2.
WC : 1.4m2.
Shower room : 2.9 x 1.5 = 4.5m2. With velux window.
Bedroom 4 : 5.5 x 2.8 = 16m2 with large velux window and cupboard. En suite attic space: 2.2 x 5.7 = 13.22m2.

Basement :
Corridor : 5.5m2.
Wine cellar : 6.1 x 1.7 = 10.7m2.
Boiler room : 2 x 3.5 = 7.3m2.
Cellar : 1.19m2.
Utility room : 3.3 x 3.8 = 13.1m2.
Garage space : 4.4 x 6 = 27.2m2.
Storeroom : 5.9 x 1.5 = 9.3m2.

Exterior :
Garage : 30m2.
Leanto : 9m2.
Garden : 1900m2.

 

Technical features :
Wooden framed single glazing + aluminium double-glazed bay windows and wooden and aluminium double-glazed 1st floor windows.
Oil-fired central heating, wood burner and wood cooker.
Linky meter.
Recent compliant septic tank system.
Accessories: Large aluminium sliding gate. Awning. Electric shutters.
Work to be carried out : 2 gutter leaks, replacement of some tiles, electricity to be renewed.